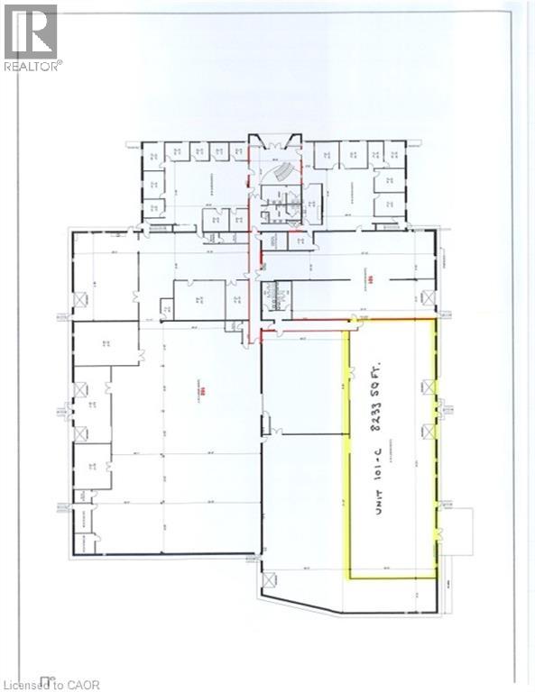
835 Harrington Court Unit# 101-C Burlington, Ontario L7N 3P3
8233 sqft
Acreage
$10.95 / ft2
Clean Flex Warehouse space with clear span bay measuring 50'x140'. DOCK LOADING with Direct access to the parking from multiple locations allows for fantastic flexibility. Other sizes and configurations also available please see other MLS listings. (id:48699)
Property Details
| MLS® Number | 40761456 |
| Property Type | Industrial |
| Parking Space Total | 10 |
Building
| Basement Type | None |
| Stories Total | 1 |
| Size Exterior | 8233.0000 |
| Size Interior | 8233 Sqft |
| Utility Water | Municipal Water |
Land
| Acreage | Yes |
| Sewer | Municipal Sewage System |
| Size Frontage | 196 Ft |
| Size Total Text | 2 - 4.99 Acres |
| Zoning Description | Ge-1 |
https://www.realtor.ca/real-estate/28915068/835-harrington-court-unit-101-c-burlington
Interested?
Contact us for more information













